來源:http://m.ycxhjx.com
過去兩年里,我們發現自己總想要突出建筑實踐的基礎:建筑制圖。
我們今年選出的所有建筑制圖都有一個敏感的表達方式,無論是藝術性的,技術性的還是概念性的,它們旨在通過紋理,3D和顏色作為主要工具,用最簡單,細膩的方式表達并詮釋各自的項目內容。
下面是過去一年八種不同類別的精彩建筑圖紙:建筑制圖、軸測圖、總圖、分析圖、手繪圖、GIF動畫、大樣圖和其它技術圖紙。
01、建筑制圖
© MONADNOCK
© Studio Architektoniczne Kwadrat
© Hyundai Kim + Tectonics Lab
© DL Atelier
© Truong An architecture + UAH Department of Architecture
© ASSISTANT
© Malan Vorster Architecture Interior Design
© PENELAS ARCHITECTS
© Shift Architecture Urbanism
© ODA New York
© Mjo?lk architekti
© Issei Suma
© MAPAA
© Arqmov Workshop
© Emerge Architects
© AGRA Anzellini Garcia-Reyes Arquitectos
© design/build LAB
© takk
© NISHIZAWAARCHITECTS
© Omar Gandhi Architect
© Alfonso Melero Bevia? y Luis Ortiz Marti?nez
© Black Pencils Studio
© Anahata
02、軸測圖
© CONNATURAL
© Rau?l Sa?nchez
© Shift Architecture Urbanism
© Wuelser Bechtel Architekten
© Truong An architecture + UAH Department of Architecture
© C.F. Møller
© Bornstein Lyckefors arkitekter
© L'EAU design
© PYO arquitectos
© Wutopia Lab
© AleaOlea architecture & landscape
© AZL Architects
© RIGI Design
© Ja?gnefa?lt Milton
© Salottobuono + Enrico Dusi Architecture
© Le Atelier
© CHYBIK+KRISTOF
© MAPAA
03、總圖
© Alfonso Melero Bevia? y Luis Ortiz Marti?nez
© MVRDV
© IAPA Design Consultants
© Pezo Von Ellrichshausen
© Garciagerman Arquitectos
© FON STUDIO
© Heesoo Kwak and IDMM Architects
© KIENTRUC O
© Duncan Lewis Scape Architecture
© Elding Oscarson
04、分析圖
© Matter Design + FR|SCH
© Archi-Union Architects
© ASSISTANT
© Batay-Csorba Architects
© Laura Ortin
© MAIO
© Jorge Vidal + Vi?ctor Rahola
© CODE
© CAVAA Arquitectes
© Fernando Neyra
© MAPAA
© Daipu Architects
© Atelier TAO+C
© DCPP Arquitectos
05、手繪圖
© Renzo Piano
© Felipe Assadi + Francisca Pulido + Isaac Broid
© Aedas
© Schneider Tu?rtscher
© Heesoo Kwak and IDMM Architects
© TZANNES
© Foster + Partners
© Jose Tomas Schmidt
© Ricardo Bofill
© nendo
© OAB
© Esculpir el Aire
© Moon Hoon
© SAMYN and PARTNERS
© Luigi Rosselli
© Lee Eunseok + KOMA
06、gif 動圖


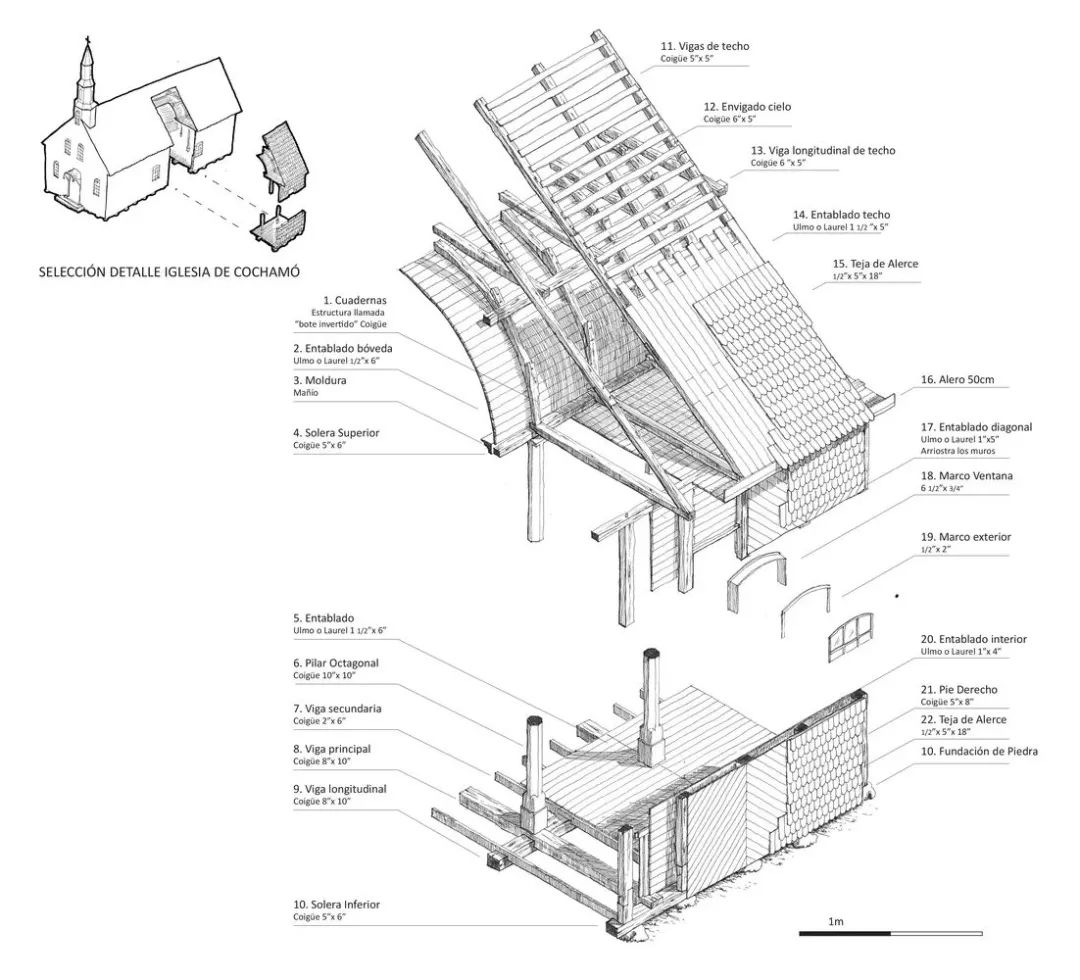
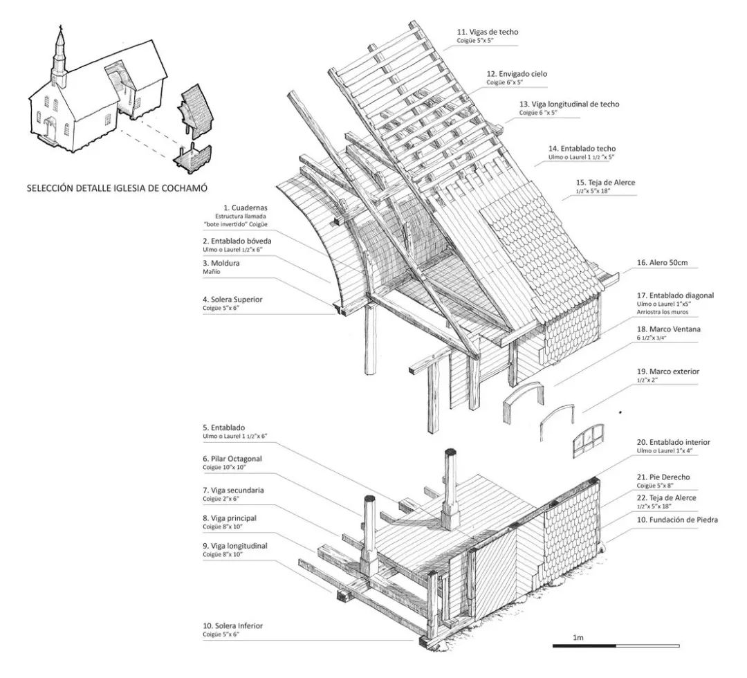
07、大樣圖
© PYO arquitectos
© Studio Cardenas Conscious Design
© Gianni Botsford Architects
© Atelier U20
© Mailitis Architects
© rimpf ARCHITEKTUR
© SO-IL
© RA?U ARCH
© Abierto Studio
© OCADU
© C.F. Møller Architects
© Jorge Vidal + Vi?ctor Rahola
© Jose? Toma?s Schmidt Canessa
© AleaOlea architecture & landscape
© Florian Busch Architects
08、其他技術圖紙
© Wuelser Bechtel Architekten
© Studio North
© DL Atelier
© MONADNOCK
© takk
© KIENTRUC O
© Aleshtar Architectural Office
© Nowdays office
本文轉載自公眾號ArchDaily
查看原文 >>